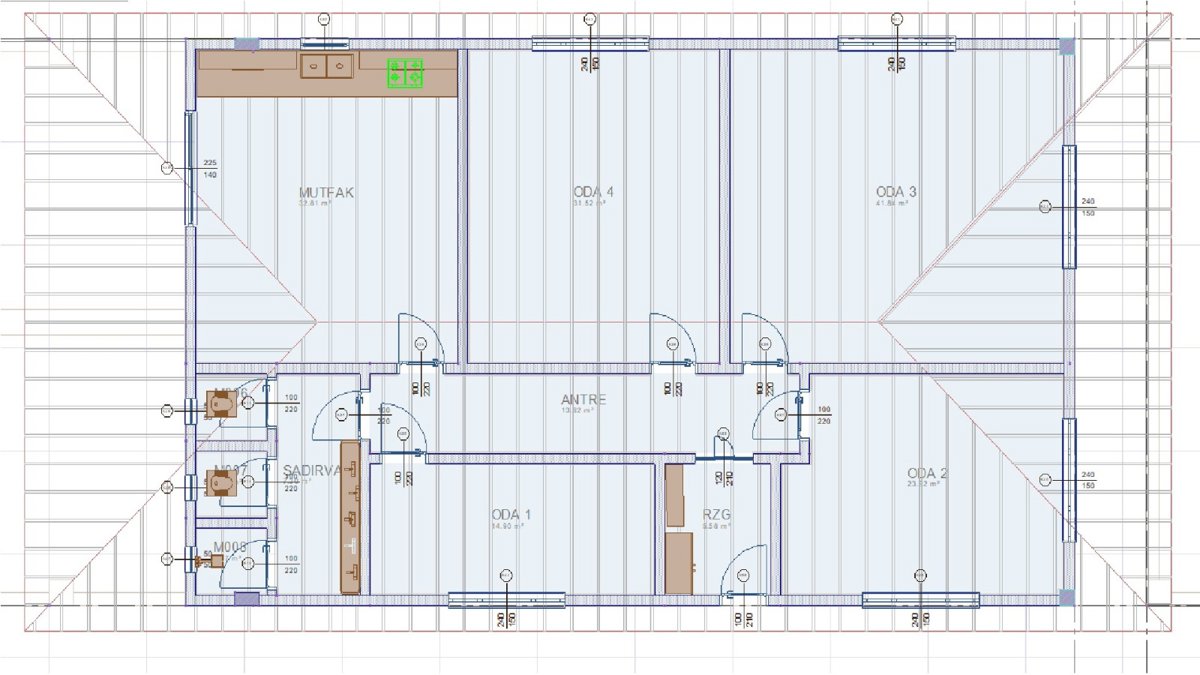
Yönetim Binası

1 Adet 750 m² Yönetim Binası


Özellikler

  • Toplantı Salonları
  • İdare Makam Odaları
  • Yönetim Birimleri Çalışma Ofisleri
  • 200m² Mescit
  • Müşteri Bekleme Alanları
  • Müşteri Kafeterya ve Büfe Alanları