Anasayfa
Kurumsal
Hakkımızda
Yönetim
Misyon & Vizyon
İnsan Kaynakları
Bizden Haberler
KVKK Aydınlatma Metni
Projeler
Tamamlanan Projeler
V-Marine Turgutreis
Nish Gümüşlük
Boulevard İstanbul
Ağzıtemiz Konağı
Yönetim Binası
Uzuner Konakları
Devam Eden Projeler
Yay Konağı
Şahingil Konağı
Lotus Göl Evleri
Lotus Kule Protokol
Hizmetler
İletişim
tr
Türkçe
English
Tamamlanan Projeler
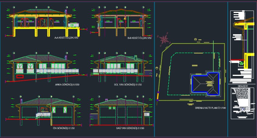
Ağzıtemiz Konağı
03 Mart 2025
Ağzıtemiz Konağı
Müşteriye Özel 200m² Müstakil Villa Anahtar Teslim Yapım Hizmeti